Xuất bản ngày 23/07/2013 07:00 AM

Mô hình nhà chữ L vừa tiện ích vừa đẹp

Không bức bí và tạo cảm giác nhàn chán như những kiểu nhà chữ L bình thường, mà ngược lại, ngôi nhà White Lodge còn tận dụng được tối đa năng lượng thiên nhiên.

Không bức bí và tạo cảm giác nhàn chán như những kiểu nhà chữ L bình thường, mà ngược lại, ngôi nhà White Lodge còn tận dụng được tối đa năng lượng thiên nhiên. 

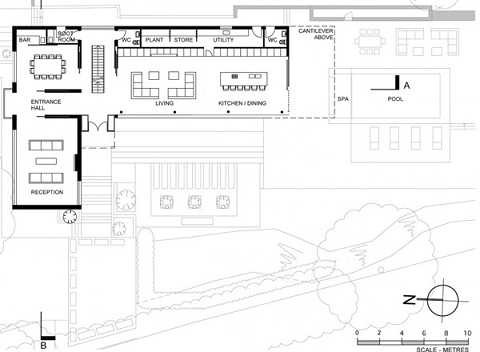
Sau một quá trình lập kế hoạch, kiến trúc sư Dyer Grimes đã xây dựng nên ngôi nhà White Lodge trên diện tích 480m 2 , bằng kỹ thuật xây dựng hiện đại kết hơp với các vật liệu chất lượng cao
.
 
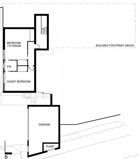
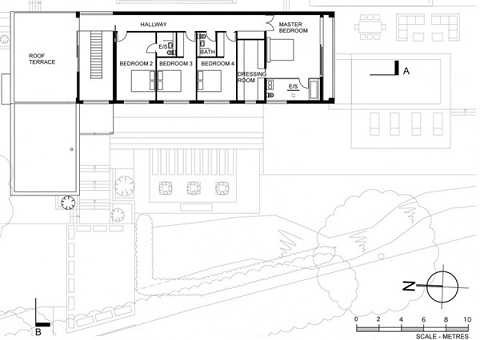
Với kiểu nhà chữ L chạy dài nếu xây kín cả tứ diện thì không gian trong nhà sẽ rất chật hẹp và ngột ngạt, nên Dyer Grimes đã khéo léo sử dụng kính để lắp đặt ở mặt trước và hai bên sườn của hai tầng nhà. Ý tưởng đơn giản nhưng lại rất tinh tế này đã giúp căn nhà trông rộng rãi hơn, tạo bầu không khí thoáng đãng, cũng như có được những góc nhìn tuyệt vời ra khung cảnh bên ngoài.

White Lodge là một trong những kiểu nhà thân thiện với môi trường, 20% năng lượng cần thiết cho ngôi nhà được sử dụng bằng năng lượng tái tạo, thông qua việc tạo ra một máy bơm nhiệt bằng không khí lưu thông xung quanh nhà. Ngoài ra, ngôi nhà còn được bố trí thêm những hệ thống đun nước bằng năng lượng mặt trời trên mái nhà.



 
 
 
 

 
 
 
 
 
 
 
Theo NDHMoney
Bình luận
vtcnews.vn
Cùng chuyên mục
Gần 3,6 tỷ đồng đến với các nạn nhân chất độc da cam

Gần 3,6 tỷ đồng đến với các nạn nhân chất độc da cam

Chương trình "55 ngày nhắn tin vì nạn nhân da cam" do Hội nạn nhân chất độc Da cam/ dioxin Việt Nam phối hợp với Cổng 1400 thực hiện đã kết thúc với 198,889 lượt tin nhắn, tương đương với 3,580,002,000 đồng đến với các nạn nhân da cam.

Tin mới