Ở Việt Nam, có rất nhiều con hẻm hẹp với chiều rộng khoảng 2 – 3 mét với các ngôi nhà giống nhau, hẹp và dài chạy dọc theo cả hai bên. Các dãy nhà dày đặc với thiết kế mặt tiền lạnh lẽo tạo ra sự nặng nề cho cả khu phố. Hầu hết các cửa sổ đều bị đóng kín để đảm bảo sự riêng tư của từng ngôi nhà.
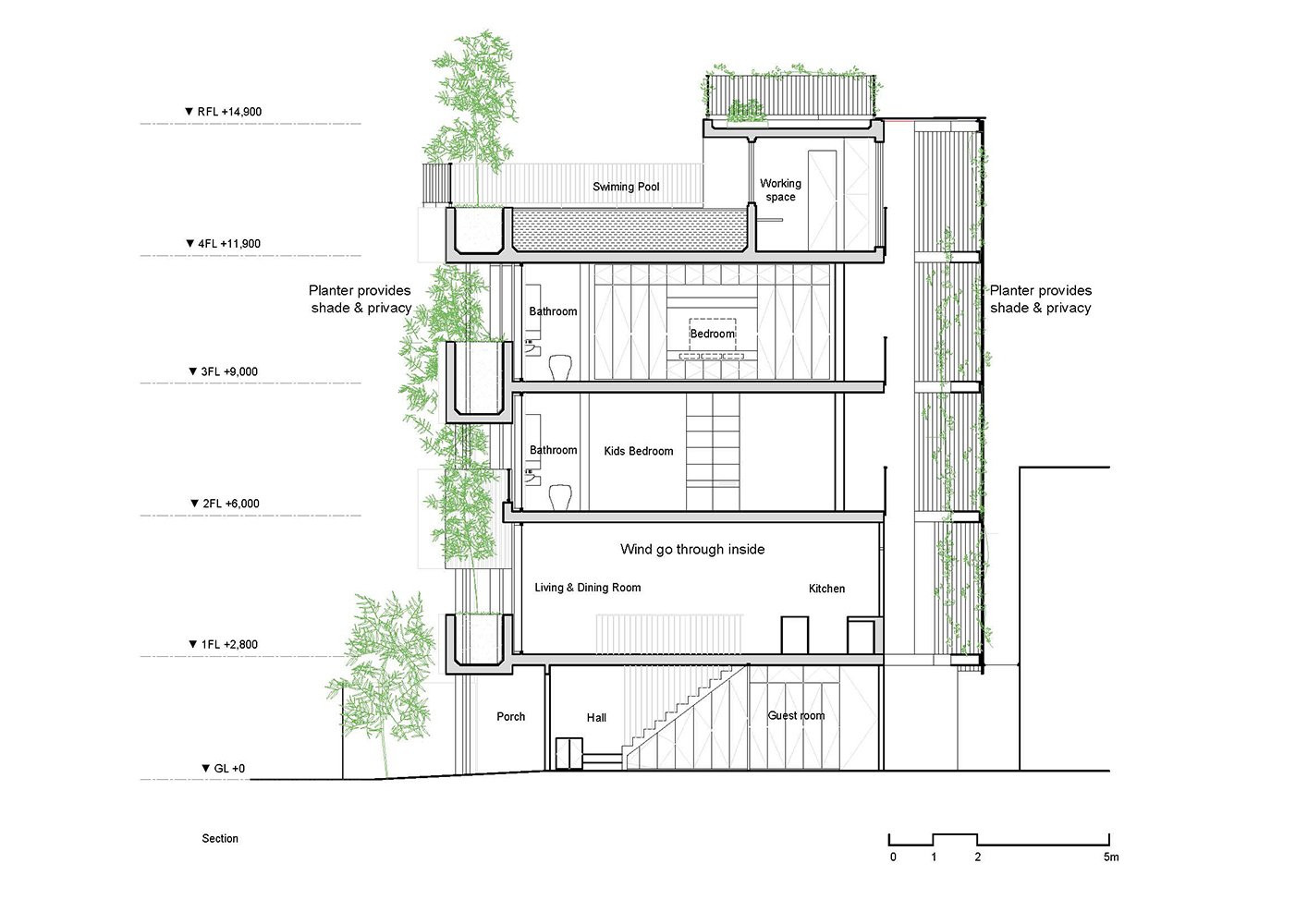
Trong dự án này, nhóm thiết kế đã sáng tạo không gian sống thoải mái mặc dù có diện tích hạn chế. Khu đất nhỏ và hẹp, chỉ có thế lấy sáng và thông thoáng tự nhiên qua 2 mặt tiền phía trước và sau. Các bồn cây bố trí ngẫu nhiên trên mặt tiền phía trước, tạo cảm giác hấp dẫn.
Chủ nhà là một người rất thích cây cối, đặc biệt là hình ảnh cây tre quen thuộc trong cuộc sống của con người Việt Nam. Nhóm thiết kế đã tạo ra những khoảng đất trống so le phía mặt tiền, phía sau là một cầu thang nửa mở được bao phủ bởi lớp cây leo, tạo thành một lớp đệm để che bớt ánh sáng mặt trời.
Video: 31 ý tưởng trang trí đẹp mắt cho ngôi nhà của bạn
Hơn thế nữa, không gian này giúp tạo ra khoảng cách với nhà kế bên để giữ được sự riêng tư cho chủ nhà. Các mảng xanh được nhìn thấy rõ từ phòng ngủ xuyên qua phòng tắm mở và xuyên qua cầu thang. Mặt trước và mặt sau của ngôi nhà thiết kế theo lối không gian mở làm cho ngôi nhà ấm áp vào mùa đông, mát mẻ vào mùa hè.
Với ngôn ngữ thiết kế thống nhất, ngoài việc trồng tre trên mặt tiền, tre còn được dùng làm ván khuôn cho các vách bê tông của bồn cây. Vân tre trên bề mặt bê tông giúp làm giảm sự khô cứng và nặng nề của tường bê tông truyền thống và do đó cải thiện chất lượng thẩm mỹ tổng thể của ngôi nhà.
Chủ nhà chia sẻ: "Tôi thức dậy với âm thanh của tiếng chim hót vào mỗi buổi sáng quanh các bụi cây. Ngôi nhà của tôi giống như một khu rừng nằm giữa một thành phố nhộn nhịp. Không gian xanh cũng giữ cho ngôi nhà mát mẻ mọi lúc, giảm việc sử dụng máy điều hòa không khí. Không gian cũng cảm thấy lớn hơn vì được mở hoàn toàn ở 2 mặt đứng".

Thiết kế ban công kiểu sole

Không gian phía trong ban công

Tầng thượng là nơi thư giãn của cả gia đình

Không gian phòng khách
Phòng ngủ trở nên thoáng mát nhờ không gian mở

Nhìn từ phía dưới căn nhà
Mặt đứng tổng thể ngôi nhà

Ngôi nhà như một khu rừng nằm giữa khu phố nhộn nhịp














Bình luận