Tôi sinh năm 1986, chồng tôi sinh năm 1987. Vợ chồng tôi mới mua được một mảnh đất 36m2, chiều ngang 4m, chiều sâu 9m và có 2 mặt thoáng. Phía sau và bên phải mảnh đất giáp với nhà hàng xóm, phía bên trái là một ngõ đi. Tôi muốn nhờ KTS tư vấn thiết kế nhà 3 tầng 1 tum với yêu cầu như sau:
- Tầng 1 là chỗ để xe, phòng khách, phòng bếp kết hợp phòng ăn.
- Tầng 2 và tầng 3: mỗi tầng có 2 phòng ngủ.
- Tuyệt đối không xây các tầng lấn chiếm diện tích ra ngoài.
Mảnh đất nhà chị Hà có tới 2 mặt thoáng và khá vuông vức nên không khó để thiết kế một ngôi nhà thoáng mát và thẩm mỹ. Kết hợp với những yêu cầu của gia đình chị Hà, chúng tôi đề xuất phương án tầng 1 sẽ được bố trí thành các không gian chức năng bao gồm: Sân để xe, phòng khách, phòng ăn kế hợp bếp nấu. Ngoài ra, ở tầng 1 sẽ còn có 1 nhà vệ sinh nhỏ đặt dưới chân cầu thang.
Cũng theo yêu cầu của chủ nhà, ở cả tầng 2 và 3, chúng tôi sẽ bố trí 2 phòng ngủ, 1 nhà vệ sinh ở mỗi tầng. Cả 4 phòng ngủ đều được trang bị đồ nội thất theo phong cách sang trọng, hiện đại và được thiết kế để tận dụng được tối đa ánh sáng tự nhiên.
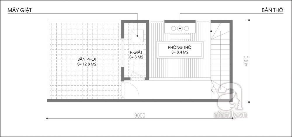
Ngoài ra, trên tầng tum, chúng tôi sẽ bố trí thêm phòng thờ và phòng giặt giũ kết hợp sân phơi đồ rộng rãi.
Chi tiết cách bố trí không gian được phác họa như sau:
Phía cửa nhà sẽ có một khoảng sân đệm, sâu gần 2m2, đây cũng được dùng làm chỗ để xe máy của cả gia đình. Ở bên phải sân đệm là 1 hệ tủ chạy dài, sát tường để lưu trữ mũ nón và giày dép. Giữa sân đệm và không gian sinh hoạt chung, chúng tôi sẽ bố trí một hệ cửa kính lớn có thiết kế dạng trượt để tiết kiệm diện tích.

Sơ đồ mặt bằng tầng 1
Do chiều sâu ngôi nhà không quá rộng rãi nên chúng tôi sắp xếp bộ ghế sofa tiếp khách và bàn ăn ở 2 phía, ở giữa là lối giao thông giúp cho không gian mạch lạc hơn, đồng thời tạo thuận tiện cho việc đi lại trong nhà. Bàn ăn được đặt gần cạnh khu vực bếp. Chúng tôi sử dụng hệ tủ bếp chữ I để tiết kiệm tiết kiệm diện tích một cách triệt để. Phía cuối nhà, cạnh chân cầu thang là một nhà vệ sinh nhỏ.
Video: Mẹo chọn và bài trí nội thất thông minh cho nhà diện tích nhỏ
Không gian sinh hoạt riêng của các thành viên trong gia đình là 4 phòng ngủ được bố trí đều trên tầng 2 và tầng 3. Mỗi tầng có 1 phòng vệ sinh ở giữa. Phòng ngủ chính có 2 mặt thoáng nên luôn nhận đủ ánh sáng tự nhiên. Nội thất trong phòng khá đơn giản, gồm giường đôi, táp đầu giường, kệ tivi, tủ quần áo và một bàn làm việc nhỏ đặt cạnh cửa sổ. Các phòng ngủ còn lại có diện tích nhỏ hơn, sẽ bố trí giường đơn, kết hợp các đồ nội thất cơ bản khác.

Mặt bằng thiết kế tầng 2 và tầng 3
Tầng tum sẽ gồm phòng thờ, phòng giặt và sân phơi.

Gia chủ sinh năm 1986, mệnh hỏa. Vì thế, nên chọn màu sáng để trang trí ngôi nhà, hạn chế sử dụng màu đen. Ngoài ra, gia chủ cũng nên bố trí thêm nhiều cây cỏ, hoa lá kết hợp với những món decor yêu thích để không gian sinh động, giàu sức sống hơn.
Dưới đây là một số hình đồ họa mô phỏng cách bố trí từng phòng mà gia chủ có thể tham khảo để bố trí nội thất cho phù hợp.





















Bình luận