Giường là phần quan trọng nhất trong phòng ngủ, nó sẽ quyết định rất lớn đến mặt phong thủy của căn phòng giúp tăng năng lượng cho bạn đấy. Dưới đây là 3 cách đặt giường ngủ khác nhau cho bạn lựa chọn.
Đặt hơi chéo so với cửa ra vào

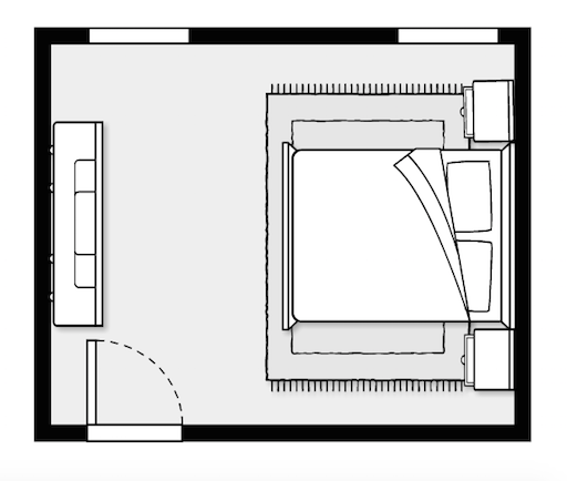
Khi bố trí giường ngủ, bạn nên đặt phần đầu sát vào tường và chéo so với cửa ra vào. Việc đặt sát vào tường sẽ giúp bạn có cảm giác vững chắc và an toàn khi ngủ. Còn về phần cửa, cửa ra vào được xem là nguồn năng lượng có thể đi vào căn phòng, vì vậy, khi đặt giường ngủ chéo cửa ra vào sẽ giúp bạn có cảm giác an toàn và dễ đi vào giấc ngủ hơn.

Có một số lưu ý nhỏ là bạn nên đặt các vật dụng khác như tủ kệ, đèn,... không được đặt bên cạnh giường mà phải đặt sát vào chân giường. Và đặt một chiếc thảm nhỏ dưới giường cũng là cách giúp giữ năng lượng cân bằng hơn.
Đặt đầu giường vuông góc với cửa ra vào

Nếu bạn đang bị mất ngủ, bạn có thể đặt giường theo cách này. Bạn đặt đầu giường vuông góc với cửa ra vào và tất nhiên là bạn phải đặt chéo cửa. Đây là cách giúp bạn dễ đi sâu vào giấc ngủ và tạo cảm giác an toàn hơn.

Tuy nhiên, bạn tuyệt đối không đặt giường ngủ đối diện với giương, đây là điều đại kỵ ảnh hưởng đến sức khỏe lẫn nguồn năng lực của bạn.
Video: Kỳ lạ bé trai 4 tuổi chết đuối khi đang ngủ trên giường
Đặt đầu giường cạnh cửa ra vào
Đây là lựa chọn thứ 3 giúp bạn bố trí phòng ngủ hợp phong thủy và rất phù hợp với căn phòng hẹp. Đặt giường cạnh cửa và để đầu giường tựa vào tường sẽ giúp tạo cảm giác vững chắc và an toàn. Hơn nữa, hãy để một khoảng cách giữa giường và cửa vừa đủ để đặt một chiếc tủ nhỏ.

Giờ bạn đã có 3 cách đặt giường ngủ hợp phong thủy cho giấc ngủ ngon, và cân bằng nguồn năng lượng giúp tiền tài và may mắn ùa vào nhà rồi nhé.















Bình luận